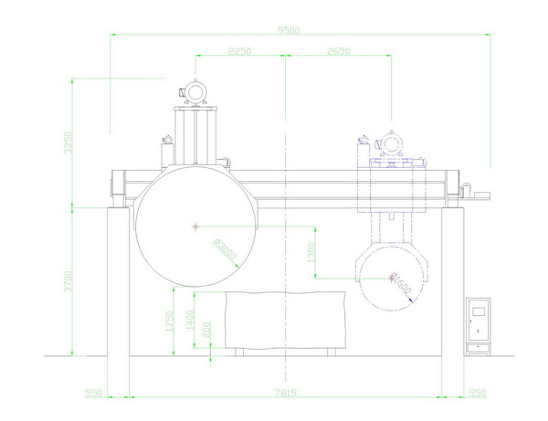
本機采用大跨度橫梁結構, 整體機身重; 橫梁導軌采用進口線性軌道; 機身升降結構采用四立柱式液壓升降, 同時采用專有技術: 立柱及邊梁,在切割時有液壓鎖緊裝置,確保切割時整體機身不晃動, 切割效率好, 板材平整度高, 是切割大規格高價值進口大荒料的理想設備. 1: 機身采用專有技術"液壓鎖緊裝置",在機械有磨損或切割過程中可減小機身間隙,有利于提高板材的平整度和延長刀頭使用壽命 (*選配 Alternative)。
 2:橫梁兩端架同時也采用"液壓鎖緊裝置",可進一步提高機臺切割的穩定性,使板材的平整度和刀頭使用壽命都有顯著提高。(*選配 Alternative) 。
 3:橫梁左右行走軌道采用臺灣產線性導軌(Hiwin 上銀科技),行走平行度高,切割時不抖動,受力時不上浮。有切割穩定性高,使用壽命長,易于更換等諸多優點。
 4:升降導柱與中座接觸面采用表面軋制美國杜邦“聚四氟乙烯”聚合物材料的導套;導套表面軋制成圓形儲油坑,在少油或間隙斷油條件下能正常工作,具有摩擦系數低,耐磨性能好,使用壽命長等優點。
 5.升降油缸采用德國進口組合式油封(寶色霞板),由一個彈性密封環,兩個擋環和兩個導向環組成的五件套的活塞密封件。比常用密封件提高幾倍使用壽命。
 6:電路系統采用PLC電腦控制系統,可任意設定切割方式、切割片數、厚度,以及下刀深度等等。所用電氣元件采用國內外優質原配件。
(點擊放大)
7:采用全新復合材料“防水尼龍”布料,有防水、防塵、抗拉力防磨損等特點,使用可拆式拉鏈結構有利于方便更換。
 8:導柱升降采用潤滑脂(俗稱黃油)來潤滑,至多每三個月只須添加一次。大大減少維護次數。
 9:采用數控鏜床加工柱孔、主軸箱等,可保證同心度的加工精度,提高產品穩定性。
 10.采用全新磨床批量加工導柱,加工精度高,質量有保證。
 11:液壓、電器元件均采用國內外品質優良原配件。

|